antonio cobo architect
For any further information:
PnS Research Project www.pneumaticserendipity.com
or by sending an email to: hello@antoniocobo.com
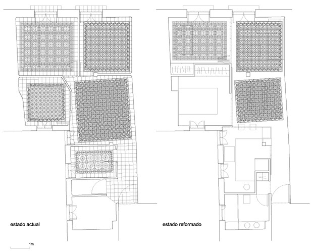
Rodas
year: 2006 location: madrid, spain type: commission size: 45 m2 client: private project: antonio cobo